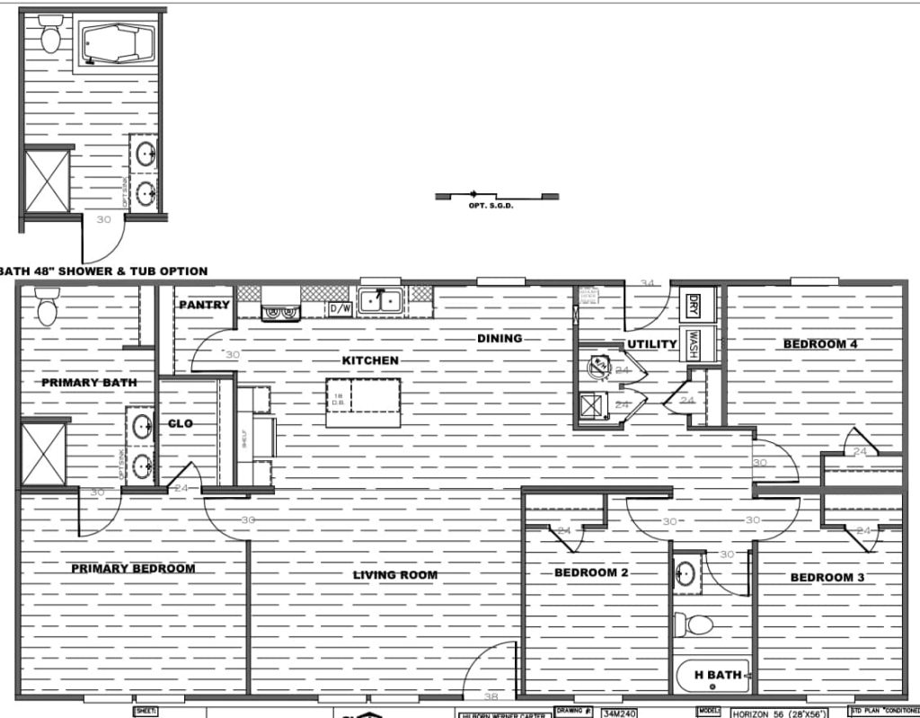
The Clayton Horizon Aspired Manufactured Home offers 1,475 sq. ft. of spacious and functional living space with 4 bedrooms and 2 bathrooms. Its open-concept design creates a bright, flowing layout, ideal for family living and entertaining. The master suite is a true retreat, featuring an ensuite with a double sink vanity and a generous walk-in closet for added convenience and storage. The home also includes a utility room with washer/dryer hookups, enhancing everyday functionality. Combining comfort, style, and practical design, the Horizon Aspired is perfect for those seeking a roomy and modern living environment. Come see us today!






































Want to learn more? For more information or for pricing information for our homes please contact us.
Step into the future of comfortable living with the Giles Revolution 76A manufactured home……
Welcome to the epitome of spacious luxury: the Giles King Air manufactured home. Boasting a sprawling 2280 square feet,….
The Crestwood is a generously proportioned manufactured ranch-style home offering about 2,245 square feet of living space with……