$74,900
DETAILS
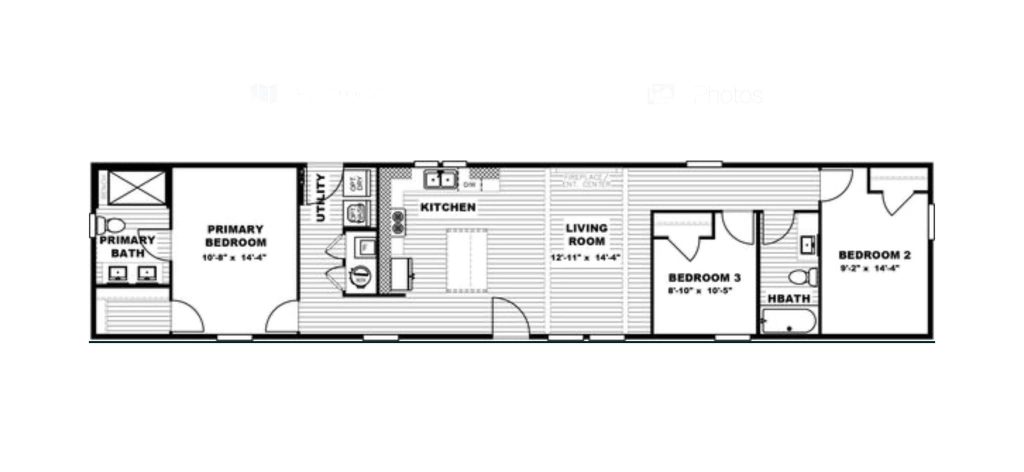
Introducing the Clayton Baby Boujee, a charming 1080 square foot manufactured home designed to maximize comfort and style. This cozy yet spacious residence features three bedrooms and two baths, with a thoughtful split-bedroom layout that ensures privacy and tranquility. The open-concept living area seamlessly integrates the kitchen, dining, and living spaces, creating a perfect setting for both daily living and entertaining. A standout feature is the built-in entertainment center, enhancing the den with a focal point for relaxation and social gatherings. Come see us in Quebec today.
FLOOR PLANS
HOME FEATURES
- Open Concept Floor Plan
- Built-In Entertainment Center
- Kitchen Island
- Split Bedroom
- Ensuite with Double Sink Vanity
- Master Walk-In Closet
- Utility Area with Washer/Dryer Hookups
FEATURES
3
Beds
2
Baths
1080
Sq Ft
16x72
Size

































Get a Quote
Want to learn more? For more information or for pricing information for our homes please contact us.
Featured Homes
The Revolution 76A
Built by: Giles
$ 67,900
Step into the future of comfortable living with the Giles Revolution 76A manufactured home……
- 3 Beds
- 2 Baths
- 1216 Sq Ft
- 16x76
The King Air
Built by: Giles
$ 121,900
Welcome to the epitome of spacious luxury: the Giles King Air manufactured home. Boasting a sprawling 2280 square feet,….
- 5 Beds
- 3 Baths
- 2432 Sq Ft
- 32x76
Crestwood
Built by: Giles
$ 109,900
The Crestwood is a generously proportioned manufactured ranch-style home offering about 2,245 square feet of living space with……
- 3 Beds
- 2 Baths
- 1216 Sq Ft
- 16x76