$115, 900
DETAILS
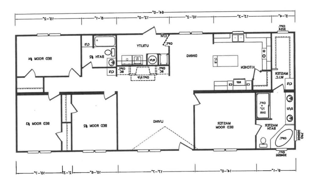
The Rawhide XL by Kabco is a spacious and well-designed manufactured home offering 1,920 square feet of comfortable living space. Featuring 4 bedrooms and 2 bathrooms, this home includes a cozy wood-burning fireplace in the living area, perfect for adding warmth and charm. The kitchen boasts a large kitchen island, ideal for meal prep and entertaining. The master suite is a true retreat with an elegant en suite bathroom, complete with a soaker tub, separate walk-in shower, and a spacious walk-in closet for plenty of storage. With its open floor plan, modern amenities, and thoughtful design, the Rawhide XL offers the perfect balance of comfort and style for families.
FLOOR PLANS
HOME FEATURES
- Wood Burning Fireplace
- Solid Wood Cab Doors
- Barnwood Trim Package
- Black Appliance Package
- Soaker Tub
- Walk-in shower
- Hookups
FEATURES
4
Beds
2
Baths
1920
Sq Ft
28x64
Size

























Get a Quote
Want to learn more? For more information or for pricing information for our homes please contact us.
Featured Homes
The Revolution 76A
Built by: Giles
$ 67,900
Step into the future of comfortable living with the Giles Revolution 76A manufactured home……
- 3 Beds
- 2 Baths
- 1216 Sq Ft
- 16x76
The King Air
Built by: Giles
$ 121,900
Welcome to the epitome of spacious luxury: the Giles King Air manufactured home. Boasting a sprawling 2280 square feet,….
- 5 Beds
- 3 Baths
- 2432 Sq Ft
- 32x76
Crestwood
Built by: Giles
$ 109,900
The Crestwood is a generously proportioned manufactured ranch-style home offering about 2,245 square feet of living space with……
- 3 Beds
- 2 Baths
- 1216 Sq Ft
- 16x76