$ 95,900
DETAILS
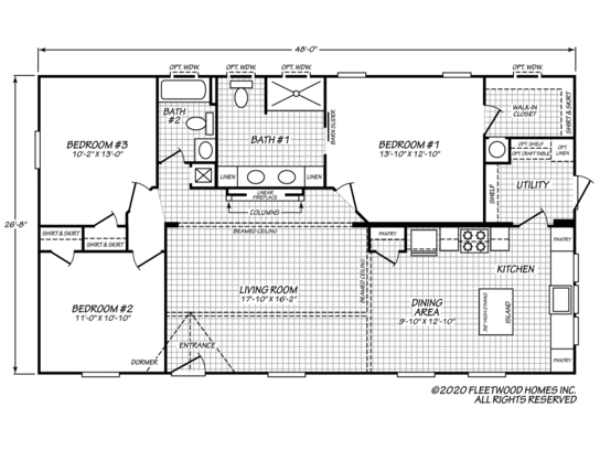
Introducing the Fleetwood Homes Bella manufactured home, where luxury and comfort converge in a spacious retreat. With 1279 square feet, this residence offers ample space for modern living. Step inside to discover an open concept layout, seamlessly integrating the living room, dining area, and kitchen, creating a vibrant space for gatherings and daily activities. The built-in entertainment center and fireplace add a touch of sophistication and warmth to the living room, perfect for cozy nights in. Retreat to the large master suite, complete with a walk-in closet and ensuite featuring double sinks.
FLOOR PLANS
HOME FEATURES
- Open concept design
- Energy efficient appliances
- Award winning customer service
- Best in industry design and construction
FEATURES
3
Beds
2
Baths
1279
Sq Ft
28x48
Size














Get a Quote
Want to learn more? For more information or for pricing information for our homes please contact us.
Featured Homes
The Revolution 76A
Built by: Giles
$ 67,900
Step into the future of comfortable living with the Giles Revolution 76A manufactured home……
- 3 Beds
- 2 Baths
- 1216 Sq Ft
- 16x76
The King Air
Built by: Giles
$ 121,900
Welcome to the epitome of spacious luxury: the Giles King Air manufactured home. Boasting a sprawling 2280 square feet,….
- 5 Beds
- 3 Baths
- 2432 Sq Ft
- 32x76
Crestwood
Built by: Giles
$ 109,900
The Crestwood is a generously proportioned manufactured ranch-style home offering about 2,245 square feet of living space with……
- 3 Beds
- 2 Baths
- 1216 Sq Ft
- 16x76